453 S Barrington

Los Angeles, CA 90049

$ 1,199,000

Price

2

Beds

3

Baths

1,683 Sq. Ft.

$712 / Sq. Ft.

54 Days On Market

Favorite

Share

Brentwood Building

Listed By Young Hong (DRE# 01967916) at New Star Realty & Investment (213-820-0218).

Have You Been Pre-Qualified? Start Now

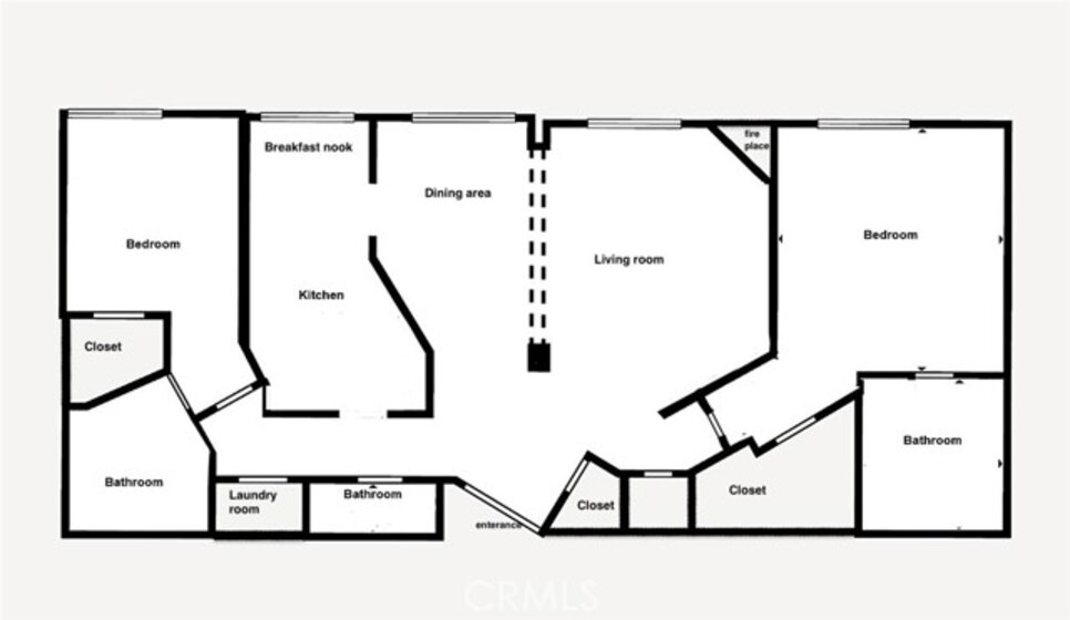
Just Reduced! – Spacious Layout at an Unbeatable Value! This exceptionally spacious 1,665-sf condominium is ideally located in the heart of Brentwood within a gated community, offering privacy and a peaceful setting away from the street. Designed for comfort and functionality, the residence features two generously sized bedrooms, each with its own en-suite bathroom and walk-in closet. The expansive primary suite offers a true retreat, complete with dual sinks, a separate shower, and a soaking tub. High ceilings and plantation shutters throughout enhance the light-filled, open ambiance. The thoughtfully designed floor plan includes in-unit laundry, a breakfast area, and a separate dining space—perfect for both everyday living and entertaining. Lovingly maintained by the original owner, the home reflects pride of ownership throughout. Additional highlights include ample guest parking, two side-by-side parking spaces, and a private storage cage ideally situated directly in front for added convenience. Enjoy close proximity to parks, local markets, restaurants, and easy access to major freeways. This is a rare opportunity to own a generously sized, well-designed condominium in one of Brentwood’s most desirable neighborhoods.

Show More
Property Type Condominium
Lot Size 41,454 sq. ft.
Year Built 1991
MLS # SR26017556
Listing Type Active
Heating Central
Cooling Central Air
Laundry In Closet

Last Updated: 31 days ago

Payment Calculator

40% Complete (success)
80% Complete (danger)
20% Complete
80% Complete (danger)
60% Complete (warning)
Principal and Interest
Property Taxes
Homeowners' Insurance
HOA Dues
Mortgage Insurance
Image Calculator Icon Customize Calculations | Compare Mortgage Rates

Property Details for: 453 S Barrington

Interior Features

Bathroom Information
  • 3 full baths
Laundry Information
  • In Closet
Fireplace Information
  • Family Room
Heating & Cooling
  • Central Air
  • Central

Parking / Garage, Multi-Unit Information, Location Details

Exterior Features

Property / Lot Details

Property Features
  • Neighborhood
Lot Information
  • Lot Size (Sq. Ft) 41,454
Property Information
  • Attached
  • Tax Parcel Number: 4401010048

Nearby Businesses

  • Grocery Stores
  • Drug Stores
  • Coffee Shops
  • Restaurants
  • Health & Medical
  • Fitness & Activity
  • Arts & Entertainment
  • Nightlife & Bars
    Browse all businesses in Los Angeles, CA, 90049

    Tour This Condo

    WEDNESDAY

    25

    MAR

    THURSDAY

    26

    MAR

    FRIDAY

    27

    MAR

    SATURDAY

    28

    MAR

    SUNDAY

    29

    MAR

    MONDAY

    30

    MAR

    TUESDAY

    31

    MAR

    Schedule A Tour
    Ryan Case, Licensed Realtor & Team Lead

    Ryan Case

    Licensed Realtor & Team Lead

    213-449-4909 Contact Ryan Case