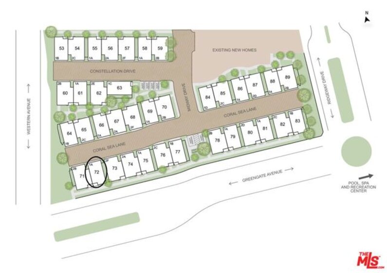
1684 Coral Sea Lane

Los Angeles, CA 90732

$ 1,024,990

Price

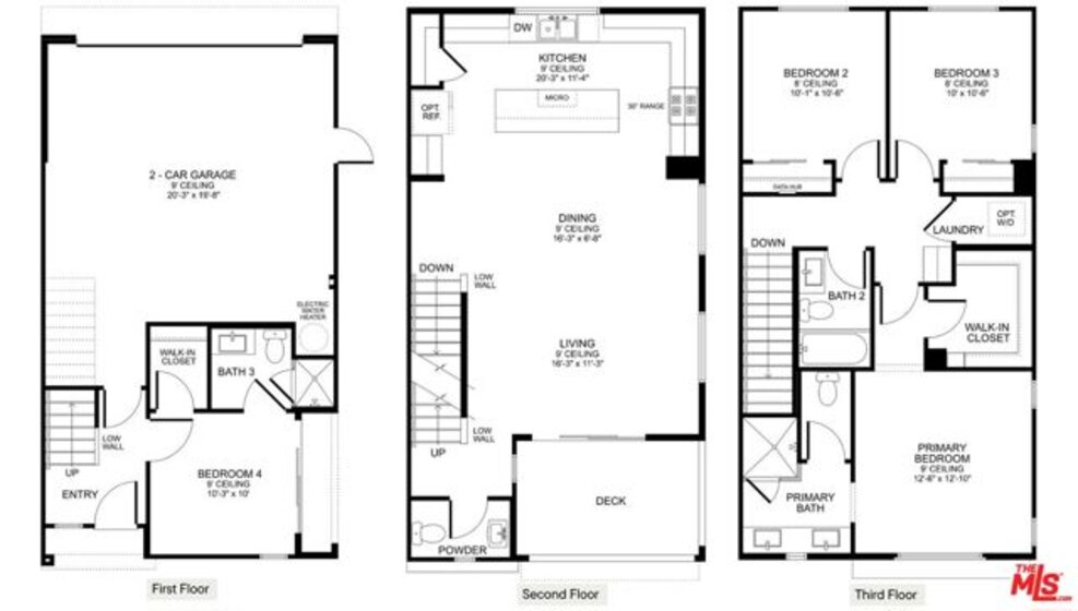
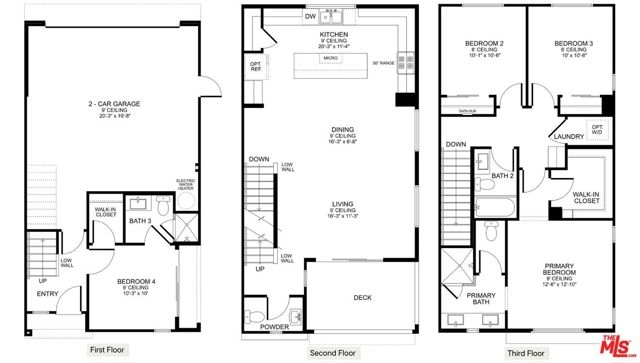
4

Beds

3.5

Baths

1,786 Sq. Ft.

$574 / Sq. Ft.

31 Days On Market

Favorite

Share

Have You Been Pre-Qualified? Start Now

Listing provided by agent Richard Castellon BRE# 02022593 at Rc Homes, Inc..

Last Updated: 2 days ago

This is the quick move-in, new construction home you have been waiting with everything included! This is a rare opportunity to own a stunning, new-construction, four-bedroom home at gated community of The Heights at Ponte Vista. This new home offers over 1,700 sq. ft. of beautifully designed and finished spaces. The open-concept layout features a first-floor junior primary suite and spacious great room with a dramatic three-panel multi-slide door, filling the home with natural light and creating a seamless indoor-outdoor connection perfect for entertaining. The chef-inspired kitchen is the centerpiece of the home, designed with quartz countertops, a full tile backsplash, and all-electric stainless-steel appliances, including an induction cooktop and a microwave drawer conveniently built into the show-stopping kitchen island. Timeless white shaker-style cabinetry completes the look with clean, classic appeal. Throughout the home, every surface has been elevated with designer-selected flooring: luxury vinyl plank in the main living areas, plush carpet in the bedrooms, and tile in all bathrooms and the laundry. Upstairs, the primary suite offers a private retreat, complete with a beautifully appointed bathroom and walk-in closet. Two additional bedrooms and secondary baths provide plenty of space for family or guests, achieving the perfect balance between gathering and privacy. This new home includes all flooring upgrades, adding exceptional value and move-in convenience. Located within the gated community of Ponte Vista, residents will enjoy a modern, all-electric lifestyle in a highly desirable location close to good schools, Palos Verdes recreational activities, and the waterfront. The Heights at Ponte Vista combines the best of design, efficiency, and Southern California living in one exceptional community. Enjoy common area pool, spa, BBQ's, covered outdoor dining area, recreational trails, green space and so much more. This is the true Coastal Living experience you have been waiting for.

Show More
Property Type Townhouse
Year Built 2025
MLS # 25591485
Listing Type Active
Heating Central
Cooling Central Air
Pool Association
Laundry Inside, Stackable, Upper Level, Individual Room
Parking Garage Door Opener, Direct Garage Access, Garage - Two Door, Guest

Payment Calculator

40% Complete (success)
80% Complete (danger)
20% Complete
80% Complete (danger)
60% Complete (warning)
Principal and Interest
Property Taxes
Homeowners' Insurance
HOA Dues
Mortgage Insurance
Image Calculator Icon Customize Calculations | Compare Mortgage Rates

Property Details for: 1684 Coral Sea Lane

Interior Features

Bathroom Information
  • 3 full baths, 1 half bath
Laundry Information
  • Inside
  • Stackable
  • Upper Level
  • Individual Room
Interior Features
  • Recessed Lighting
  • Living Room Deck Attached
  • Open Floorplan
  • 2 Staircases
  • Storage
  • Cathedral Ceiling(s)
  • High Ceilings
Heating & Cooling
  • Central Air
  • Central

Parking / Garage, Multi-Unit Information, Location Details

Interior Information
  • Recessed Lighting
  • Living Room Deck Attached
  • Open Floorplan
  • 2 Staircases
  • Storage
  • Cathedral Ceiling(s)
  • High Ceilings
Parking Information
  • Garage Door Opener
  • Direct Garage Access
  • Garage - Two Door
  • Guest

Exterior Features

Pool & Spa Information
  • Association
  • Association

Property / Lot Details

Property Features
  • Hills
Lot Information
Property Information
  • Attached
  • Tax Parcel Number: UNAVAILABLE

Nearby Businesses

  • Grocery Stores
  • Drug Stores
  • Coffee Shops
  • Restaurants
  • Health & Medical
  • Fitness & Activity
  • Arts & Entertainment
  • Nightlife & Bars
    Browse all businesses in Los Angeles, CA, 90732

    Tour This Condo

    MONDAY

    8

    DEC

    TUESDAY

    9

    DEC

    WEDNESDAY

    10

    DEC

    THURSDAY

    11

    DEC

    FRIDAY

    12

    DEC

    SATURDAY

    13

    DEC

    SUNDAY

    14

    DEC

    Schedule A Tour
    Ryan Case, Licensed Realtor & Team Lead

    Ryan Case

    Licensed Realtor & Team Lead

    213-449-4909 Contact Ryan Case
    Listing provided by agent Richard Castellon BRE# 02022593 at Rc Homes, Inc..

    Last Updated: 2 days ago